ドゥーエ新丸子(IR645)
情報更新日:2026/04/30 情報有効期限:2026/05/30 掲載期限まであと29日
[物件種別:マンション]
| 賃料/管理費等 | 155,000円/5,000円 | 敷金 | 1ヶ月 | 礼金 | 1ヶ月 |
|---|---|---|---|---|---|
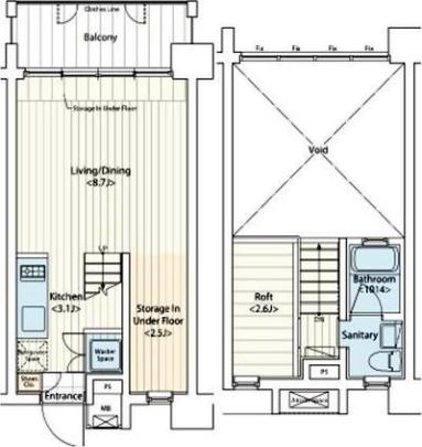
| 間取り | 1R | 面積 | 24.68m2 | 築年月 | 2006年10月 |
| 住所 | 神奈川県川崎市中原区丸子通1丁目475 | ||||
| アクセス |
東急東横線新丸子駅
徒歩 9分
東急東横線武蔵小杉駅 徒歩 15分 |
||||
| エアコン | オートロック | 温水洗浄便座 | TVモニター付きインターホン | 宅配ボックス | 床暖房 | バス・トイレ別 |
| 室内洗濯機置場 | フローリング | システムキッチン | インターネット対応 | 敷地内駐車場 | BSアンテナ | バルコニー |
| ロフト | 都市ガス | CSアンテナ | 追い焚き風呂 | 冷房 | ガスコンロ(3口) | フリーレント1ヶ月 早期解約違約金あり |
| 浴室 |
賃貸物件の写真・間取りなど
間取り |
オートロック付きです |
フローリングです |
北東向きです |
システムキッチンです |
追い炊き機能付きです |
賃貸物件の概要
| 名称 | ドゥーエ新丸子 | 入居時期 | 相談 |
|---|---|---|---|
| 構造 | 鉄筋コンクリート造 | 契約期間 | 2年 |
| 間取り詳細 | 駐車場 | 有り 24200円 | |
| 所在階/階数 | 6階 (8階建て) | 採光面 | 北東 |
| 取引態様 | 媒介 | 鍵交換費用 | |
| 火災保険費用 | 要 18000円 | 保証会社費用 | 加入要 初回保証委託料:月額賃料等の50%(最低保証料2万円 |
| 備考 | 清掃代:39600円 鍵発行手数料:16500円 エアコン清掃代:15000円 | ||
| 設備・条件 | オートロック/宅配ボックス/冷房/TVモニター付きインターホン/フローリング/バス・トイレ別/追い焚き風呂/室内洗濯機置場/温水洗浄便座/システムキッチン/ガスコンロ(3口)/都市ガス/エアコン/床暖房/インターネット対応/BSアンテナ/CSアンテナ/フリーレント1ヶ月 早期解約違約金あり/浴室/バルコニー/ロフト/敷地内駐車場 | ||






[賃貸物件担当者コメント]
バルコニー/ロフト/敷地内駐車場