宮嵜貸家の特徴

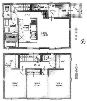
  • 間取り
  • 駐車場2台分あります

[物件種別:一戸建]

賃料/管理費等 130,000円/0円 敷金 2ヶ月 礼金 1ヶ月
間取り 2LDK 面積 89.42m2 築年月 2020年5月
住所 神奈川県横浜市泉区上飯田町1031ー2
アクセス 相鉄いずみ野線いずみ中央駅 徒歩 13分
  • エアコン
  • TVモニター付きインターホン
  • バス・トイレ別
  • 室内洗濯機置場
  • カウンターキッチン
  • 敷地内駐車場
  • 洗髪洗面化粧台
  • クローゼット
  • シャワー
  • 専用庭
  • ピッキング対策キー
  • 追い焚き風呂
  • ガスコンロ(3口)
  • プロパンガス
  • 駐車場(2台)
  • 初期費用カード決済可

宮嵜貸家の概要

名称 宮嵜貸家 入居時期 相談
構造 木造(在来) 契約期間 2年普通賃貸借
間取り詳細 洋6 洋11.2 LDK14   駐車場 有り 無料
所在階/階数 1階 (2階建て) 採光面
取引態様 媒介 鍵交換費用
火災保険費用 要 24000円 保証会社費用 加入要 アーク株式会社、一括支払いの場合賃料総額の80%、別
備考
設備・条件 ピッキング対策キー/TVモニター付きインターホン/クローゼット/バス・トイレ別/追い焚き風呂/シャワー/洗髪洗面化粧台/室内洗濯機置場/カウンターキッチン/ガスコンロ(3口)/プロパンガス/エアコン/敷地内駐車場/駐車場(2台)/専用庭/初期費用カード決済可

[宮嵜貸家担当者コメント]

    敷地内駐車場/駐車場(2台)/専用庭/初期費用カード決済可

【宮嵜貸家】 横浜市泉区上飯田町 [一戸建(居住用)]

  • 駐車場2台分あります

    駐車場2台分あります

  • 間取り

    間取り

取扱企業

取扱会社名 ピタットハウスセンター南店 賃貸営業部
所在地 〒224-32
神奈川県横浜市都筑区茅ヶ崎中央19番6号
電話番号 045-264-3311
免許番号 神奈川県知事(5)24582号
設立 平成12年7月28日
定休日 毎週水曜日
営業時間 9:30〜18:30
備考 港北ニュータウン・田園都市線沿線のマンション査定業務を行っております。一人暮らし用のシングル物件からファミリー物件・タワーマンション・新築物件まで豊富な情報量で勝負します。お気軽にお問い合わせください!